Espace propriétaire
fr

Votre recherche

Vendu
Parçay-Meslay (37210)

6 pièces - 122 m²

Villa de 122m² à vendre à Parçay-Meslay (37)

Ref : 1382 VP
Découvrir le bien

***VENDU PAR VINCENT PAVARD 06 70 46 35 28*** À PARÇAY-MESLAY, maison 5 chambres exposée EST/OUEST d’environ 122m² habitables avec sous-sol proche de toutes commodités, bus, commerces, écoles, autoroute A10...

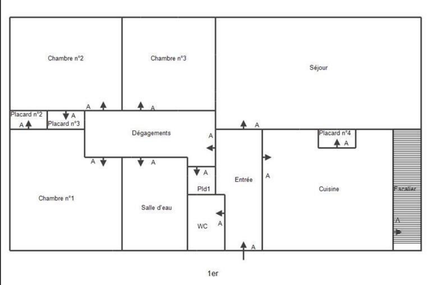
Le bien se compose d'une entrée, salon / salle-à-manger de 28m² donnant sur une terrasse de 25m² avec vue sur le jardin, cuisine indépendante de 13m² (possibilité d'ouvrir la cuisine sur le salon), trois chambres de 10, 11 et 13m², salle d'eau, WC. Au sous-sol deux chambres de 14m² chacune, salle d’eau avec WC, garage, cave/cellier et pièce de rangement. Terrain de 668m² avec cour bitumée devant la maison.

LES ++ : allée en enrobé de 2021, chaudière à condensation de 2021, portail motorisé de 2020, porte de garage motorisée, fenêtres PVC, isolation des combles/ VMC de 2011...

Mandat n°1382 - Référence 1382 VP. Pour visiter et vous accompagner dans votre projet contactez Vincent PAVARD mandataire indépendant auprès de la SARL-U INITIAL IMMOBILIER (Siren 798990685), au O6 70 46 35 28 ou par courriel à [Coordonnées masquées]. La présente annonce immobilière a été rédigée sous la responsabilité éditoriale de Mr Pavard Vincent, mandataire indépendant en immobilier (sans détention de fonds), agent commercial de INITIAL IMMOBILIER immatriculé au RSAC de TOURS sous le numéro 807935473, titulaire de la carte de démarchage immobilier pour le compte d 'INITIAL IMMOBILIER. - Annonce rédigée et publiée par un Agent Mandataire

TRAD_ZEPHYR_Caracteristique TRAD_ZEPHYR_Valeurs
Code postal 37210
surface terrain 668 m²
Nombre de chambre(s) 5
Nombre de pièces 6
Nombre de niveaux 2
TRAD_ZEPHYR_Caracteristique TRAD_ZEPHYR_Valeurs
Nb de salle d'eau 2
Cuisine Séparée
Mode de chauffage Gaz de ville
Type de chauffage TRAD_TYPE_CHAUFF_CHAUDIERE
Format de chauffage Central
Terrasse OUI
Nombre de garage 1
Exposition Est-Ouest
Année de construction 1971
TRAD_ZEPHYR_Caracteristique TRAD_ZEPHYR_Valeurs
Copropriété NON
DPE GES
Contacter pour ce bien
Négociateur
PAVARD Vincent Agent commercial
Téléphone 0670463528
N° RSAC 807935473

* Champ obligatoire

Les informations recueillies sur ce formulaire sont enregistrées dans un fichier informatisé par La Boite Immo agissant comme Sous-traitant du traitement pour la gestion de la clientèle/prospects de l'Agence / du Réseau qui reste Responsable du Traitement de vos Données personnelles. La base légale du traitement repose sur l'intérêt légitime de l'Agence / du Réseau. Elles sont conservées jusqu'à demande de suppression et sont destinées à l'Agence / au Réseau. Conformément à la loi « informatique et libertés », vous disposez des droits d’accès, de rectification, d’effacement, d’opposition, de limitation et de portabilité de vos données. Vous pouvez retirer votre consentement à tout moment en contactant directement l’Agence / Le Réseau. Consultez le site https://cnil.fr/fr pour plus d’informations sur vos droits. Si vous estimez, après avoir contacté l'Agence / le Réseau, que vos droits « Informatique et Libertés » ne sont pas respectés, vous pouvez adresser une réclamation à la CNIL. Nous vous informons de l’existence de la liste d'opposition au démarchage téléphonique « Bloctel », sur laquelle vous pouvez vous inscrire ici : https://www.bloctel.gouv.fr Dans le cadre de la protection des Données personnelles, nous vous invitons à ne pas inscrire de Données sensibles dans le champ de saisie libre.
Ce site est protégé par reCAPTCHA, les Politiques de Confidentialité et les Conditions d'Utilisation de Google s'appliquent.

Découvrir nos outils